Ga naar de inhoud

Nieuwbouw

Aan het Molenpad in Peize, nabij de winkels, had Woonborg twee woningen staan.

Nieuwbouw
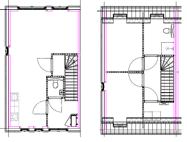
Dee twee woningen aan het Molenpad in Peize zijn gesloopt. Op die plek gaan we vijf gezinswoningen bouwen voor één- tot driepersoonshuishoudens (twee slaapkamers).

Voorlopige bouwperiode
In de voorbereiding op nieuwbouw is er altijd veel te organiseren. De start van de bouw wordt naar verwachting na de zomer van 2025. De oplevering van de vijf nieuwe woningen staat gepland voor voorjaar 2026.

Verhuurinformatie
Naar verwachting worden de woningen eind 2025 aangeboden. Reageren kan dan via Thuiskompas.nl. 

Details

Aantal woningen 5
Status In voorbereiding
Type woningen Gezinswoningen
Voorlopige bouwperiode 2025-2026