Nieuwbouw
Aan het Molenpad in Peize, nabij de winkels, had Woonborg twee woningen staan.
Nieuwbouw
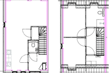
De twee woningen aan het Molenpad in Peize zijn gesloopt. Op die plek bouwen we vijf gezinswoningen voor één- tot driepersoonshuishoudens (twee slaapkamers).
Bouwperiode
De bouw is gestart in het najaar van 2025. De oplevering van de vijf nieuwe woningen staat gepland voor mei 2026.
Verhuurinformatie
Naar verwachting worden de woningen in het eerste kwartaal van 2026 aangeboden. Reageren kan dan via Thuiskompas.nl.
Details
| Aantal woningen | 5 |
|---|---|
| Status | In aanbouw |
| Start project | 01-05-2026 |
| Type woningen | Gezinswoningen |
| Voorlopige bouwperiode | 2025-2026 |